Opis nieruchomości
Inwestycja Enklawa Bukowa, jako cała inwestycja, tworzy spójną przestrzeń z otaczającymi ją terenami zielonymi, które zapewnią przyszłym mieszkańcom aktywne spędzenie czasu. Nowoczesne formy architektoniczne oraz ponadczasowe połączenie bieli i antracytu nadadzą atrakcyjny i modernistyczny charakter inwestycji. Całości dopełnią starannie zaplanowane nasadzenia traw, krzewów, drzew, przede wszystkim buków.
Nazwa inwestycji
Enklawa Bukowa
Lokalizacja
Tadeusza Śliwiaka 28, 30-798 Kraków
Informacje ogólne
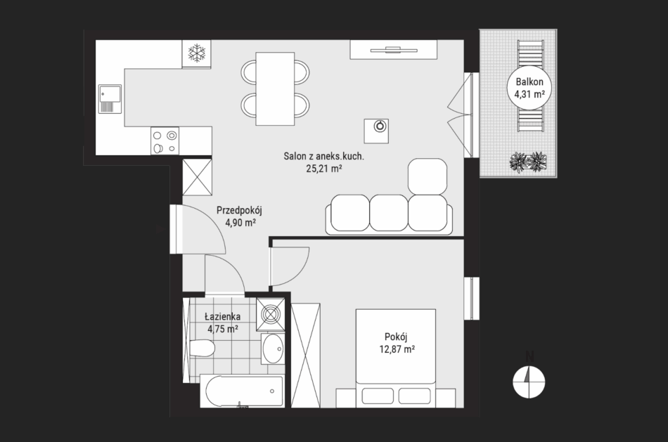
Metraż
47,73
Pokoje
2
Piętro
5
Termin oddania
II kwartał 2026
Stand. wykończenia
Deweloperskie
Miejsce postojowe
dostępne
Liczy się kolejność zgłoszeń
Otrzymaj szczegółową ofertę już teraz
u003cpu003eu003cbr data-mce-bogus=u00221u0022u003eu003c/pu003e
| 1A_13 |
Wyszukiwarka
