Opis nieruchomości
Luksusowe apartamenty z panoramicznym widokiem na jezioro cechujące się elegancją oraz komfortem. Mnóstwo udogodnień dla mieszkańców zarówno na obszarze inwestycji jak i w okół niej. N11 Apartamenty Mikołajki dedykowane są dla koneserów życia na najwyższym poziomie.
Nazwa inwestycji
N11 Apartamenty Mikołajki
Lokalizacja
aleja Spacerowa 11, 11-730 Mikołajki
Informacje ogólne
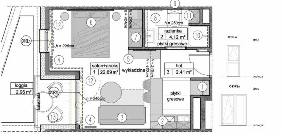
Metraż
29,42
Pokoje
1
Piętro
4
Termin oddania
Dostępne do użytku
Stand. wykończenia
Pod klucz
Miejsce postojowe
dostępne
Liczy się kolejność zgłoszeń
Otrzymaj szczegółową ofertę już teraz
u003cpu003eu003cbr data-mce-bogus=u00221u0022u003eu003c/pu003e
| 1A_13 |
Wyszukiwarka
