Opis nieruchomości
Nowoczesna architektura, filtry antysmogowe, tereny zielone – lasy tynieckie, blisko centrum i komunikacji miejskiej, w pobliżu znajduje się centrum handlowe, przedszkole, żłobek, punkty usługowe i gastronomiczne; spokojna okolica
Nazwa inwestycji
Osiedle Versus etap II
Lokalizacja
Jana Kantego Federowicza, Kraków
Informacje ogólne
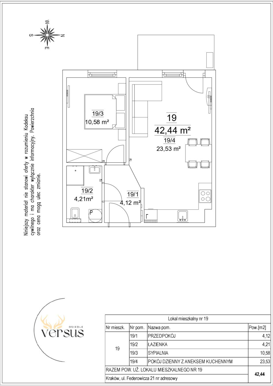
Metraż
42,44
Pokoje
2
Piętro
1
Termin oddania
II kwartał 2026
Stand. wykończenia
Deweloperskie
Miejsce postojowe
dostępne
Liczy się kolejność zgłoszeń
Otrzymaj szczegółową ofertę już teraz
u003cpu003eu003cbr data-mce-bogus=u00221u0022u003eu003c/pu003e
| 1A_13 |
Zobacz również
u003ch2u003eInne u003cstrongu003enieruchomościu003c/strongu003eu003c/h2u003e
Wyszukiwarka
