Opis nieruchomości
Nowoczesna architektura, filtry antysmogowe, tereny zielone – lasy tynieckie, blisko centrum i komunikacji miejskiej, w pobliżu znajduje się centrum handlowe, przedszkole, żłobek, punkty usługowe i gastronomiczne; spokojna okolica
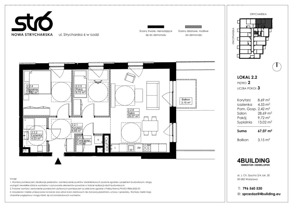
Nazwa inwestycji
Nowa Strycharska
Lokalizacja
Strycharska 6, Łódź
Informacje ogólne
Metraż
67,07
Pokoje
3
Piętro
2
Termin oddania
II kwartał 2026
Stand. wykończenia
Deweloperskie
Miejsce postojowe
dostępne
Liczy się kolejność zgłoszeń
Otrzymaj szczegółową ofertę już teraz
u003cpu003eu003cbr data-mce-bogus=u00221u0022u003eu003c/pu003e
| 1A_13 |
Wyszukiwarka
